Проектирование формикария

Мое приветствие!
Хочу предоставить на ваш суд проект формикария. Предполагаемые жильцы: жнецы. Это жилая часть, арена будет находиться за ней и представлять часть целой конструкции, но пока не о ней. Покопавшись на форуме, я все же не был удовлетворен информацией об устройстве систем увлажнения и вентиляции, поэтому и прошу вашей критики.
Итак:
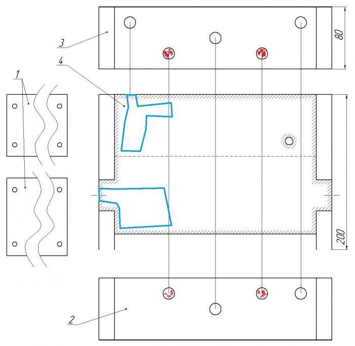
Формикарий будет заказан из оргстекла, хотя смотровые крышки (№1 на рисунке) по возможности будут сделаны из стекла. Габаритные размеры указаны в миллиметрах.
№2 и №3 на рисунки это соответственно нижняя и верхняя части закрывающие гипсовый блок (его границы в пределах основной детали (№4) обозначены штрихом) Для не сведущих, на разверстке грань ближняя к зрителю более жирная.
№4 основная часть в которой будет находиться гипс, поделена на 2 секции, для расширения жизненного пространства с ростом популяции. Отверстие, обведенное штрихом – выход на арену, на задней стенке жилого отделения.
Отверстия с подведенными к ним синими маркерами не что иное как 2 камеры увлажнения (пока семья не большая увлажняться будет только верхняя. Остальные отверстия сверху и снизу, а также справа с боку шахты вентиляции, которые будут соединены с жилыми отсеками. Предполагается влажные камеры слева, средне влажные по середине, и сухие справа. Вентиляционные шахты, помеченные красным маркером, не предполагается соединять с жилыми отсеками – они нужны для предотвращения проникновения излишней влаги на правую, сухую сторону.
Так же прошу совета по поводу раствора: чистый ли гипс лить или добавить чего? Нужно ли добавлять в раствор средства от плесени и грибка, не навредит ли это жителям. Подойдут ли обычные акриловые краски для декорирования? Можно ли зашпаклевать стенки камер глиной?
Заранее благодарю за ответы.

Изображения: 

Комментарии

Аватар пользователя niks

1 - А просто акриловый.

А просто акриловый, на основе например, этого
https://vk.com/anthills?w=wall-92149966_480
доработать под нужный размер, правда он горизонтальный.

Аватар пользователя Ivan

2 - Если судить по пропорциям, то

Если судить по пропорциям, то ширина формика около 300мм (примерно 1,5 от высоты.) В гипсовом формике такого размера градиент будет не очень, если гипс будет одним куском.
ИМХО.

Аватар пользователя Glacialis

3 - Акриловый не нравится внешне,

Акриловый не нравится внешне, все же хочется что то приближенное к естественному...

Да, ширина 300. Думаете обилие вентиляции не спасет? Плюс к тому толщина будет 80мм.
Немного пересмотрел размеры камер увлажнения. Верхнюю думаю выполнить в виде кратера, нижнюю просто как шахту с небольшим гротом снизу. увеличивать ширину не охота. Может придется разделять влажные и сухие камеры перегородкой, и делить жилую зону на 2 части.

Вчера был у мастера по оргстеклу. Выяснилось что я не первый с подобным заказом, и он даже знает слово "формикарий") Предложил заменить вентиляционные отверстия разрезами, шириной 0,5 мм - будет ли этого достаточно что бы охладить пыл любопытных мелких товарищей?

Аватар пользователя Ivan

4 - Glacialis Может придется

Glacialis
Может придется разделять влажные и сухие камеры перегородкой, и делить жилую зону на 2 части.

http://antclub.org/node/9142 и конкретно http://antclub.org/node/9142#comment-122468

Аватар пользователя vitimof

5 - В гипсовом 300х200х2

В гипсовом 300х200х2 прекрасно жили жнецы без всякого разделения камер на сухие и влажные и градиент влажности обеспечивался. Быстро его переросли и пришлось переселять в большой из пенобетона.

P3060109.JPG
Аватар пользователя Glacialis

6 - В итоге я отказался от это

В итоге я отказался от это конструкции и сделал более простой вариант, единственное что меня беспокоит - это увлажнение. Не очень охота делать шахты и увлажнять снизу, хотя на форуме говорят что именно этот вариант лучше, ибо сверху будет размывать...

vitimof
Быстро его переросли и пришлось переселять в большой из пенобетона.

а на сколько быстро?

Аватар пользователя vitimof

7 - Glacialis а на сколько

Glacialis
а на сколько быстро?

Месяцев за 5-6